流れを後ろ楯する「片流れ」
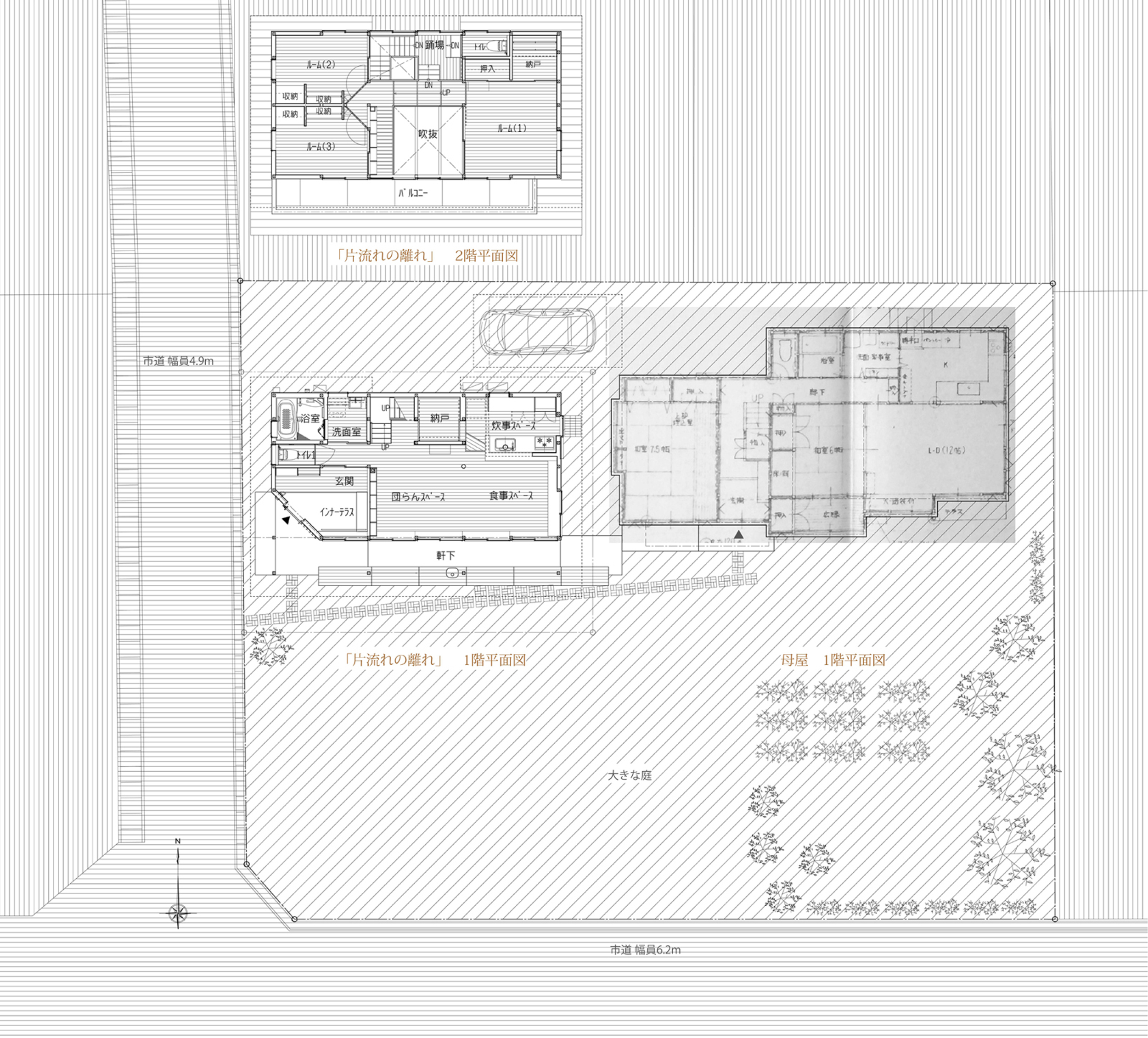
親夫婦の母屋が建つ敷地内に、息子家族の暮らす住宅を増築する計画。敷地は、1960年代から70年代に開発された区画の角地に位置している。もともと小さな工場が建っていたらしいが、1992年、230坪のこの土地に母屋が建てられた。息子さんは中学生のころからこの母屋で育った。
この敷地の東西に並列する住宅や集合住宅、あるいは小さな工場は全て、南側に庭や駐車場を配している。建物は北側に寄せて建てて、南側の道路沿いには庭や駐車場(オープンスペース)を設ける。無論それ自体は特別なことではなく、日本の住宅地においては一般的な建ち方と言っても良いかもしれない。しかしながら、それにあえて反する建ち方を勧めることは、無言の地域的レギュレーションに背くようなひどく自己中心的なことに感じた。ゆえに、配置計画としては、建物を北側に寄せることで、東西のオープンスペースリレーに参加することとした。そうすると母屋の庭と新たな住宅の庭が一体になるということがごく自然に生まれた。
お施主さんからの大きな要望は二つ
・新しい建物が既設の母屋に迷惑をかけないこと
・母屋と関係を持ちつつ、けれどきちんと独立していること
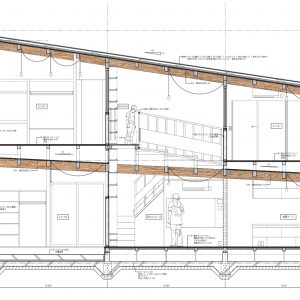
そこで、母屋へ向かって傾斜していく片流れの屋根と床を持つ「離れ」のような住宅を提案した。屋根を片流れにすることで母屋に向かって建物高さをだんだん低くする。2階の床梁も同時に片流れることで2階床レベルも低くなり、全体高さはますます低くなる。結果的に、離れの片流れ屋根の最下端は2階建てを保ったまま、母屋の下屋の高さにまで下がっていった。母屋に迷惑をかけたくないというお施主さんの気持ちが、そのまま建ち方や外観、内部空間に現れることとなった。
屋根は少し急な勾配15/100に傾けて、2階の床梁は少し緩やかな勾配5/10でつくった。(その中間にあるバルコニーの手摺壁は10/100。)急勾配は雨水や風を滑らかに処理することができ、緩勾配は母屋への視線や活動の流れを柔らかくゆったりと関係付ける。また屋根の勾配と2階床の勾配が異なるため、場所によってさまざまな室内環境が生まれていく。天井が高く道路に面した開放性の高い西側、だんだん低くなる天井とともに母屋や地面との距離が近くなる東側、というように。
さらに片流れの屋根と床は南側へ大きく張り出して、軒下空間をつくっている。だから軒の高さも同時に勾配なりに変化する。その流れに合わせるように棚を設けて、その棚の高さも段状に勾配させた。同じつくりの棚でも、その高さの違いよって飾り棚、シンク台、テーブル、ベンチ、縁台(車輪付き)へと使い方が変化する。
このようにして屋根と床の勾配が、グラデーショナルに天井高の変わる内部空間と軒下空間を同時に生み出し、母屋や庭とつながっていく。外観と内部空間が分離しない建築。片流れとは、その名のとおり「流れ」を担保する汎用な形式である。建築は一般的に流れを留めるために存在する。陽を遮り、風を避けて、雨から守る。けれどここでは、太陽の光や風、雨や雪をスムーズに受け流していく。そして、息子家族の視線や意識、活動も同時に母屋へ向かって流れることを促す。留めずに、流す。そんな状態を大変にシンプルで汎用な形式を用いながらも、新しいあり方で実現しようと試みている。
片流れの勾配が生み出す「広がること」と「狭まること」を日常生活に組み込ませることで、母屋と離れ、室内と庭、家族と近隣などの関係性に、選択肢や多様性を与えていく。つながることと隔たることの往復の日常化は豊かな暮らしを紡いでいく、そう信じて設計した。
建築概要
| 名称 | 片流れの離れ/homeYG |
|---|---|
| 所在地 | 愛知県半田市 |
| 用途 | 専用住宅 |
| 階数 | 地上2階 |
| 敷地面積 | 134.43㎡ |
| 建築面積 | 74.52㎡ (建蔽率55.43% 許容60%) |
| 延床面積 | 125.86㎡ (容積率93.62% 許容200%) |
| 竣工 | 2019年7月 |
| 構造・構法 | 木造在来工法 |
| 建築設計 | 市川大輔/adm |
|---|---|
| 構造設計 | 小松宏年/小松宏年構造設計事務所 |
| 施工 | 上中建築株式会社 |
| 竣工写真 | エスエス名古屋支店 |



